via Bligny n. 15 – Torino, quadrilatero romano

Via Bligny, 15, 10122, Piemonte

Key Details

Status
Vendita
Type
Residenziale
Anno di costruzione
1960
Spese condominiali annue
840
Riscaldamento
centralizzato

Overview

Lo Studio Cirillo Immobili propone in vendita bilocale situato nel cuore del centro storico di Torino, precisamente in Via Bligny 15, a pochi passi dalla rinomata Via Garibaldi, una delle vie pedonali più vivaci e ricche di servizi della città.
L’appartamento si trova al terzo piano con ascensore all’interno di uno stabile degli anni’60 dotato di servizio di portineria, elemento che garantisce maggiore sicurezza e comodità.
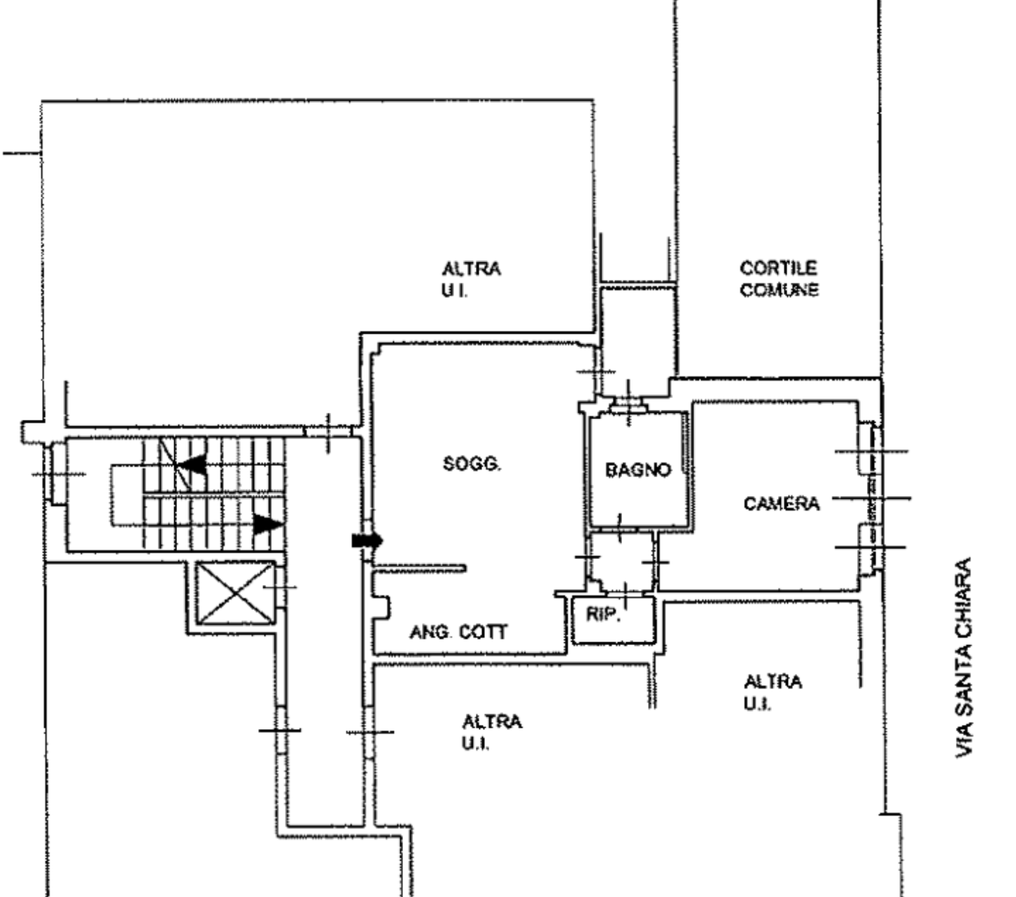
Internamente l’immobile è composto da ingresso living su zona giorno, con parete cottura e area soggiorno ben organizzata, disimpegno che conduce alla camera da letto dotata di cabina armadi, bagno e comodo ripostiglio.
La soluzione si presenta in buono stato interno, pronto per essere abitato o facilmente personalizzabile secondo le proprie esigenze. È inoltre dotato di riscaldamento centralizzato e impianto di climatizzazione, garantendo comfort abitativo in ogni stagione.
Grazie alla posizione centralissima, alla vicinanza ai principali servizi, mezzi pubblici e attività commerciali, questa soluzione rappresenta un’ottima opportunità sia come abitazione principale sia come investimento.
Studio ”CIRILLO IMMOBILI S.A.S. ” con socio unico Andrea Cirillo, corso Tortona n. 18/A 10153 TORINO (TO) – TEL: 011.197. 06.935 – CEL: 392.69. 27.748. mail: – SITO: La nostra esperienza al vostro servizio Cirillo Immobili mette a vostra disposizione la sua esperienza nel settore immobiliare maturata nel corso degli anni, la sua cortesia e competenza. La nostra volontà di offrirvi servizi di livello sempre alto rendono semplice la compravendita e l’affitto di immobili, guidandovi e consigliandovi con cura e trasparenza in tutte le fasi della trattativa fino alla realizzazione finale.

Amenities

Ascensore
Aria condizionata
Balcone
Portineria

Floor Plans

Explore the Area

Transportation
Restaurants
Shopping
Cafes & Bars
Arts & Entertainment
Fitness